
Being Sold via Secure Sale online bidding. Terms & Conditions apply. Starting Bid £500,000
**A STUNNING STONE BUILT RESTAURANT/BAR PREMISES BEING OFFERED FOR SALE ON THE FAMOUS COBBLED MAIN STREET OF THE SOUGHT AFTER HISTORIC VILLAGE OF HAWORTH!!**
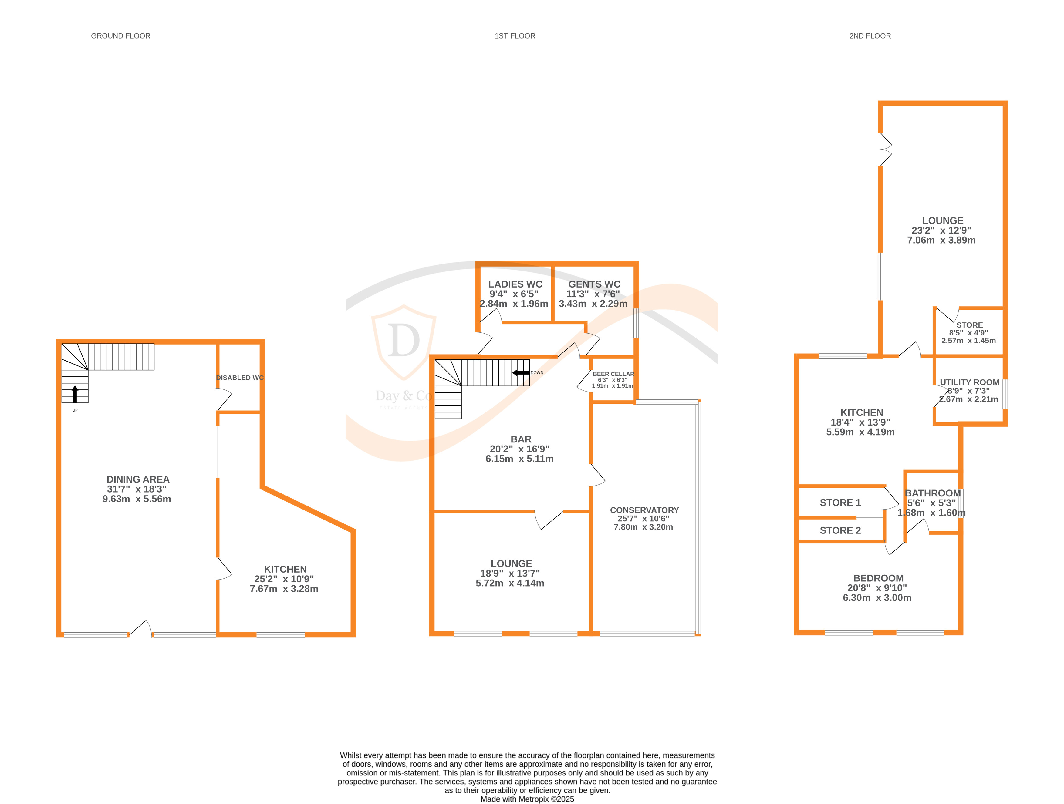
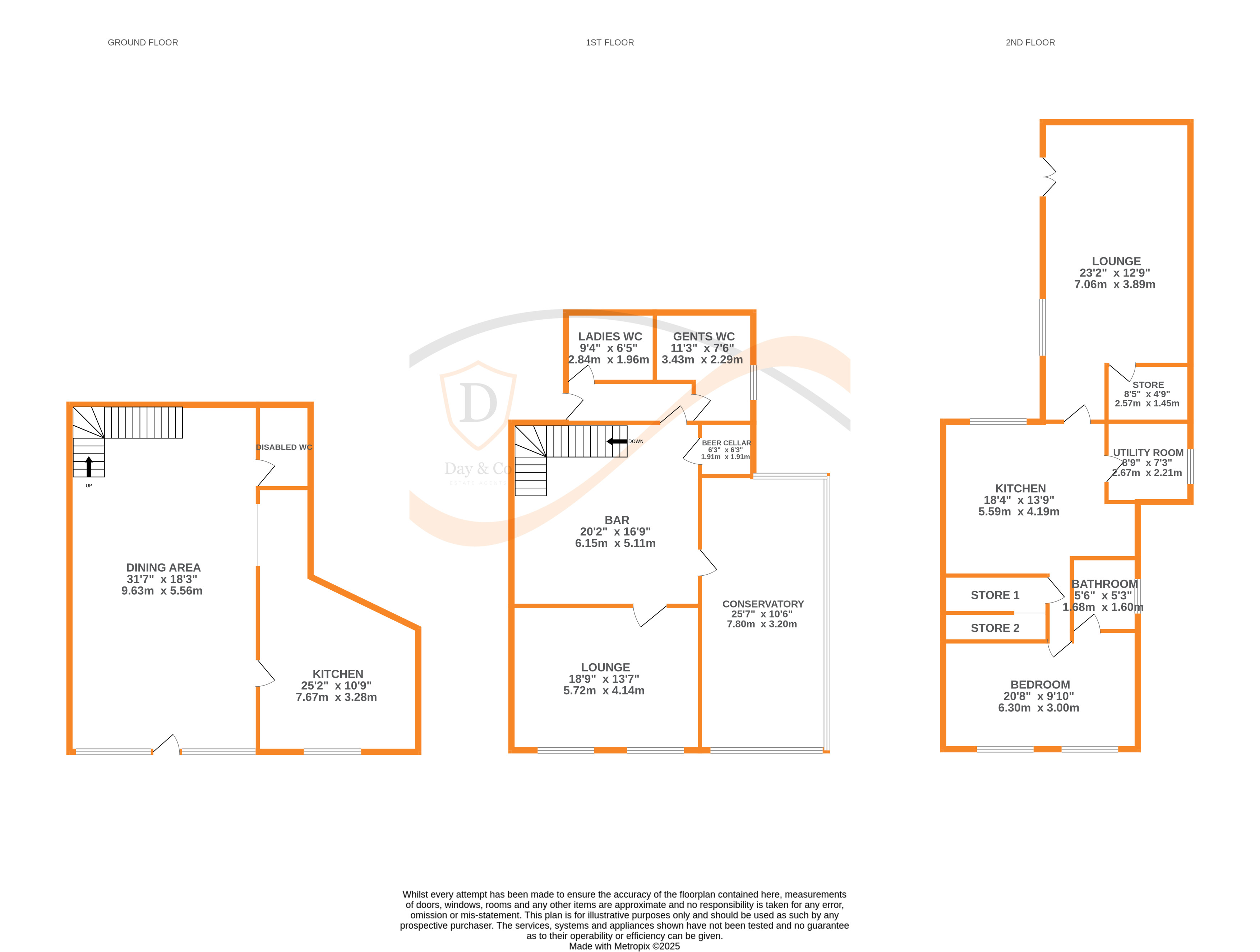
THE PROPERTY IS CURRENTLY SET OUT OVER 3 FLOORS HAVING RESTAURANT, KITCHEN & DISABLED EC TO THE GROUND FLOOR, LOVELY BAR AREA, LOUNGE, ORANGERY AND CUSTOMER TOILETS TO THE FIRST FLOOR. TO THE TOP FLOOR IS A SPACIOUS SELF CONTAINED ONE BEDROOM APARTMENT WITH PRIVATE ACCESS COMPRISING LOUNGE DINER GIVING ACCESS TO THE TIERED GARDEN AT THE REAR, FREEZER STORE, SPACIOUS DINING KITCHEN WITH SEPARATE UTILITY ROOM & FURTHER STORE. THERE IS A DOUBLE BEDROOM WITH EN-SUITE SHOWER ROOM. THE PREMISES HAVE BEEN RECENTLY RENOVATED TO A HIGH SPECIFICATION, EARLY VIEWING HIGHLY RECOMMENDED!!
Being Sold via Secure Sale online bidding. Terms & Conditions apply. Starting Bid £500,000
A unique opportunity to acquire this stunning well fitted restaurant with owners accommodation above in this enviable position situated on the cobbled Main Street of the world famous Haworth Main Street. The property has been recently renovated to a high specification has accommodation over 3 floors. Very briefly the accommodation comprises good sized dining area with stone flagged flooring, features stonework to the walls, open staircase to first floor. The kitchen and disabled WC are on this level. The first floor which has a soft seating area and fully fitted bar, lounge with two windows overlooking the famous cobbles; doors lead out to the orangery offering further seating for diners. There is a beer cellar/store, split level stairs lead to the gents and ladies lavatories respectively. To the top floor is a self contained apartment with private access which is again tastefully presented and comprises fitted kitchen with comprehensive range of base & wall units with integrated appliances, utility room, impressive lounge/dining area with polished floor, exposed beamed ceiling and separate freezer store. Patio doors lead out from here onto the tiered garden at the rear offering far reaching views. There is a double bedroom with two windows to the front and having an en-suite shower room. Internal viewing is highly recommended to fully appreciate the size and quality of this property and will not disappoint.
Auctioneers Additional Comments
Pattinson Auction are working in Partnership with the marketing agent on this online auction sale and are referred to below as 'The Auctioneer'. This auction lot is being sold either under conditional (Modern) or unconditional (Traditional) auction terms and overseen by the auctioneer in partnership with the marketing agent. The property is available to be viewed strictly by appointment only via the Marketing Agent or The Auctioneer. Bids can be made via the Marketing Agents or via The Auctioneers website. Please be aware that any enquiry, bid or viewing of the subject property will require your details being shared between both any marketing agent and The Auctioneer in order that all matters can be dealt with effectively. The property is being sold via a transparent online auction. In order to submit a bid upon any property being marketed by The Auctioneer, all bidders/buyers will be required to adhere to a verification of identity process in accordance with Anti Money Laundering procedures. Bids can be submitted at any time and from anywhere. Our verification process is in place to ensure that AML procedure are carried out in accordance with the law. The advertised price is commonly referred to as a ‘Starting Bid’ or ‘Guide Price’ and is accompanied by a ‘Reserve Price’. The ‘Reserve Price’ is confidential to the seller and the auctioneer and will typically be within a range above or below 10% of the ‘Guide Price’ / ‘Starting Bid’. These prices are subject to change.
An auction can be closed at any time with the auctioneer permitting for the property (the lot) to be sold prior to the end of the auction. A Legal Pack associated with this particular property is available to view upon request and contains details relevant to the legal documentation enabling all interested parties to make an informed decision prior to bidding. The Legal Pack will also outline the buyers’ obligations and sellers’ commitments. It is strongly advised that you seek the counsel of a solicitor prior to proceeding with any property and/or Land Title purchase. Auctioneers Additional Comments
In order to secure the property and ensure commitment from the seller, upon exchange of contracts the successful bidder will be expected to pay a non-refundable deposit equivalent to 5% of the purchase price of the property. The deposit will be a contribution to the purchase price. A non-refundable reservation fee of up to 6% inc VAT (subject to a minimum of £7,200 inc VAT) is also required to be paid upon agreement of sale. The Reservation Fee is in addition to the agreed purchase price and consideration should be made by the purchaser in relation to any Stamp Duty Land Tax liability associated with overall purchase costs.
Both the Marketing Agent and The Auctioneer may believe necessary or beneficial to the customer to pass their details to third party service suppliers, from which a referral fee may be obtained. There is no requirement or indeed obligation to use these recommended suppliers or services